Рустик соломенный Олива шагрень - 9 (1000х2450 мм)

Рустик соломенный Олива шагрень - 9 (1000х2450 мм)

К сравнению
В избранное
Серия кухонных модулей:Фаска
Ориентация изделия:Угловая
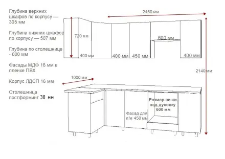
Ширина:100 см
Ширина 2:245 см
Высота:214 см
Глубина:60 см
Материал фасада:МДФ
Материал корпуса:ЛДСП
Цвет фасада:Рустик соломенный, Олива шагрень
В наличии
от
55 400
Рекомендованная розничная цена. Оптовая цена по запросу.
Заказать через:
Гарантия 18 месяцев
Гарантия 18 месяцев
На все: столешница, корпус и фасады
Быстрый расчёт
Быстрый расчёт
Cтоимость гарнитура в день обращения
От 5 дней
От 5 дней
Срок изготовления гарнитура
Бесплатный дизайн
Бесплатный дизайн
Разработка дизайн-проекта бесплатно!
Описание
Характеристики
Отзывы
Как заказать
Замеры перед покупкой
Доставка

* Изображения и цвет могут отличаться от оригинала, в зависимости от разрешения и настроек вашего монитора, а также условий освещения при съемке.

На фото представлен один из возможных вариантов комплектации.

Каждому, кто закажет кухонный гарнитур, мы предлагаем:

  • Гарантию месяцев на столешницу, корпус и фасады
  • Быстрый расчёт стоимости в день обращения
  • Изготовление гарнитура от дней
  • Бесплатную разработку дизайн-проекта
Характеристики
Серия кухонных модулей
Ориентация изделия
Ширина
Ширина 2
Высота
Глубина
Материал фасада
Материал корпуса
Цвет фасада
Фрезеровка
Стекла
Цвет корпуса
Цвет столешницы
Направляющие ящиков
Стиль
Отзывов ещё нет — ваш может стать первым.
Все отзывы 0
общий рейтинг

Как заказать

Понравилась модель? Мы адаптируем её под вашу кухню.

Оставляйте заказ любым удобным способом:

  • Позвонив по телефону указанному на странице "Контакты";
  • Отправив заявку через форму на сайте;
  • Отправив сообщение в WhatsApp, Viber, Telegram;
  • Отправив письмо на почту;
  • Обратившись к одному из наших дилеров, указанных в списке.

Наш менеджер свяжется с вами для обсуждения дальнейших действий.

Какие замеры нужно сделать перед покупкой кухни?

Перед тем, как вы соберетесь идти в салон, обязательно сделайте следующие замеры:

  1. Длина, высота, ширина помещения
  2. Размеры окон. Высота от пола до подоконника
  3. Расстояние, на которое подоконник выступает от стены
  4. Размеры окна между кухней и ванной комнатой
  5. Размеры кухонной двери и куда она открывается
  6. Водопровод и канализация, место подвода труб
  7. Отопление: батареи и трубы
  8. Газовые трубы, их размещение, положение газового крана
  9. Вентиляционная решетка: ее местонахождение
  10. Другие отверстия, выступы и т.п.
  11. Если у вас имеется своя бытовая техника, которую вы хотите разместить на кухне, укажите, пожалуйста, ее точные размеры (высота, ширина, глубина)
Как сделать замеры кухни

Доставка

Кухни, изготавливаемые фабрикой, отправляем в любой регион России услугами транспортных компаний.

Условия доставки

Стоимость логистических услуг рассчитывается индивидуально в зависимости от региона получателя.

Как оформить

При оформлении заказа на кухонный гарнитур или шкаф, менеджер, при необходимости, произведёт расчёт стоимости доставки до указанного адреса.

Для получения точной информации о стоимости кухонного гарнитура, стоимости и сроках доставки, необходимо оформить заказ на сайте или обратиться к менеджеру по телефону или через мессенджеры.

Рекомендуем
арт. 23 Лайн Тальк - 1000х2450
Артикул:4600060607162
от55 400
арт. 24 Лайн Обсидиан - 1000х2450
Артикул:4600060608169
от55 400
арт. 25 Лайн Фарфор - 1000х2450
Артикул:4600060609166
от55 400
арт. 26 Лайн Стамбул - 1000х2450
Артикул:4600060610162
от55 400
арт. 27 Лайн Стамбул Бетон светлый - 1000х2450
Артикул:4600060611169
от55 400
арт. 28 Лайн Тальк Пикрит - 1000х2450
Артикул:4600060612173
от55 400
Белый глянец арт. 21 - 1000х2450
Артикул:4600060661171
от55 400
С этим товаром также покупают